Working with me.

Person using a computer mouse at a white desk with a wireless keyboard, a large monitor, and a smartphone in the background.

Process

My process follow the RIBA Plan of Work stages, which defines the various different stages involved in the design and construction of a building. This has the advantage of reducing client risk and costs, as the instruction to proceed to the next stage is given only when the client is happy to. There is no obligation to commit to all of the stages when appointing me. The example below follows a new build house which replaced an existing one on the site. For more details on the finished building, go to The House on The Downs in the project menu.

Stage 0: Feasibility

Topographical survey plan showing property boundaries, buildings, trees, and measurements of a residential area. Includes legend, scale, and notes.
A well-manicured garden with trimmed bushes and trees in front of a brick house with a gabled roof and white window frames.

The existing building on the site

This stage kicks off the process.

It starts with an initial consultation, to understand your hopes and dreams for the building, the budget and timescale.

This will form “The Brief”, setting out the key requirements for the project.

We then need to gather facts about the site, or existing building, by arranging necessary surveys, such as topographical, drainage, ecology etc.

This information needs to be analysed to understand the constraints and opportunities and what might, or might not be possible.

I can then advise if the project is feasible, and advise on next steps, approvals needed and costs involved.


Stage 1: Concept Design

This is when we start working out what the building could be like, how big it needs to be, where it is located, and rough form and massing. There may be options and alternative designs, to see what works best. I use 3D models to help design the building, which clients find very helpful.

During this stage there is the opportunity to take the design in many directions, and it’s my job as the Architect to make appropriate suggestions, which the client may not have realised were possible, and to bring a clarity of thought to the decision making process, in what can sometimes feel an overwhelming amount of decisions to be made.

I help clients understand how the sun will track around the building, where there are opportunities we can advantage of, and constraints that will affect design options.

The 3D model can be explored inside and out, and is a working tool that can be altered in real time during design meetings, to ensure the client understands and has full control of how the design evolves.


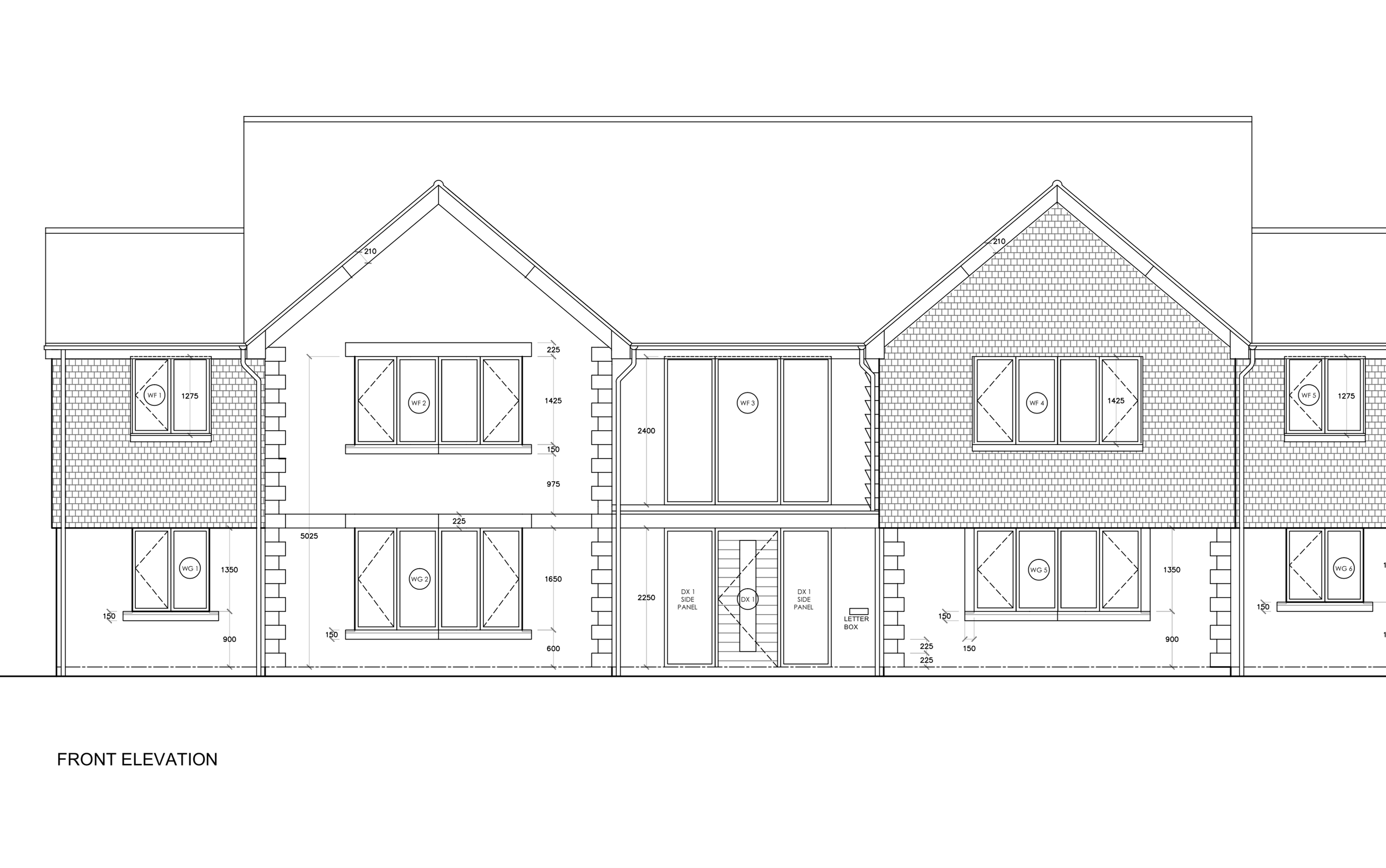
Stage 2: Developed Design

Architectural blueprint of a two-story house with detailed elevations and material specifications, showing front and side views, landscaping, and structural elements.
This stage builds on the Concept Design by developing the design in more detail, including external materials, window and door proportions, detailing and junctions. At the end of this stage the design is then sufficiently detailed enough to be suitable to apply for the necessary planning consent. The planning application will usually require more information that just the details of the proposed building, such as reports and statements to support the proposals. These may need to be prepared by external consultants. I would liaise and co-ordinate with them to ensure we have a robust set of information before proceeding to submit the planning application.

I would usually submit the planning application, as your “agent”, and deal with the planners during the consultation process. If required, I can speak in support of the proposals at planning committee.


Stage 3: Technical Design

Architectural blueprint of a house's front elevation, showing multiple windows, doors, and a central staircase with detailed measurements.
Following planning approval, we can move onto the Technical Design stage.

This is when we add more detail to the planning design, such as wall, roof and floor construction specifications, to ensure the design complies with all the various parts of the Building Regulations. We add dimensions and specification notes to provide the detail needed for contractors to be able to accurately cost the design, and to be able to build it.

There will usually be the need for a structural engineer to assist with this stage, in the design of structural elements such as foundations, steel beams and roof sructure. I would liaise with them to ensure their information is co-ordinated.

We may need input from other specialist or suppliers, to ensure that when the time comes to build that the design has been resolved, so the contractor just needs to be concerned with construction, rather than resolving design issues.

The Technical Design information would be submitted for Building Regulations approval, and I would manage that process.


Stage 4: Tender

Two people signing documents on a table, with a woman helping a man with the paperwork.
Once we have Planning Permission and Building Regulations approval, we need to find a contractor to build it.

I will suggest suitable firms, but before we put the design out to tender, it is wise to quantify the materials and expected construction standards required. We also need to define the length of the construction period, start and end dates.

This information is usually detailed in a Bill of Quantities, prepared by a Quantity Surveyor, and a project Specification.

This information ensures that all of the tendering contractors are pricing the same requirements, allowing us to make fair comparison of the prices.

Once the tenders have been returned, there may need to be further negotiation in order to agree a price that is acceptable to client and contractor.

Following that, a contractor will be appointed and construction work can start to be planned.


Stage 5: Construction

Construction site with a large green crane lifting a wooden roof truss onto a brick house under construction, with scaffolding surrounding the structure.
It's now time to start building. Before we do, it's wise to have a Building Contract drawn up, which sets out the work required to be done, and the agreed price. As the Architect, I would arrange this, and then act as "Contract Administrator" for the project. It is my job to ensure the terms of the contract are fairly applied to both contracting parties, and that both parties are fulfilling their duties, i.e. the contractor is building the work to the required standard, and the client is paying them what they are owed.

During the construction stage I would make regular visits to monitor the contractors progress and standards, and deal with any queries or client variations.

The contractor is usually paid in monthly installments, based on the value of the constructed work and materials on site, and I would issue payment certificates instructing the client how much to pay.

This is an exciting stage, when all the planning and design work from the previous stages pays off. It’s always good to see lines on paper become bricks and mortar.


Stage 6: Completion

A large brick house with a red roof, multiple windows, and a front door. There is a smaller brick garage with solar panels on the roof to the left. The house is surrounded by a well-maintained lawn, trees, and a curved driveway leading up to the entrance, under a blue sky.
The construction stage will draw to an end and the building is now complete. There is still work to be done such as snagging, commissioning of services and sign-off of the work before hand-over of the building to the client, ready for them to move in.  

With a standard building contract there is usually a “rectification period” of 6 or 12 months, after which any minor issues are attended to by the contractor, and the final payment is relased to them.

All that remains then is to take photos of the finished building, and for the client to enjoy their new home.


“It has been a pleasure working with you - but not only that - so important to have you as our mentor on this unfamiliar journey. Having your professional oversight throughout this project has given us both the reassurance to be confident with so many decisions and yes, between us I think we have achieved something very special here.”

– Mr & Mrs Booth, Liddington